Ningbo Richge Technology Co., Ltd.
Ningbo Richge Technology Co., Ltd.
Prodotti
VS1 (Zn63) -24 Interruttore di aspirazione VCB per interni
  • VS1 (Zn63) -24 Interruttore di aspirazione VCB per interniVS1 (Zn63) -24 Interruttore di aspirazione VCB per interni
  • VS1 (Zn63) -24 Interruttore di aspirazione VCB per interniVS1 (Zn63) -24 Interruttore di aspirazione VCB per interni

VS1 (Zn63) -24 Interruttore di aspirazione VCB per interni

Model:VS1(ZN63)-24
vs1-24 L'interruttore a vuoto ad alta tensione interno si applica al sistema di alimentazione della tensione nominale 24kV come unità di protezione e di controllo per le attrezzature della rete elettrica e le attrezzature di energia industriale. Può equipaggiare con KYN28 (GZS1), XGN, GG-1A e altri tipi di pannelli di commutazione. Prodotti correlati: carina isolata, carina e trasformatore di tensione.  Crediamo nella relazione a lungo termine e affidabile per l'interruttore di rottura del carico isolato a gas 24 kV, cilindro fusibile per quadri isolati a gas, modulo F isolato a gas. La nostra azienda aderisce sempre alla filosofia aziendale di 'integrità, standardizzazione, efficienza, cooperazione, condivisione e win-win' e enfatizza la gestione raffinata in modalità di gestione e presta attenzione alla consapevolezza del servizio per massimizzare la creatività e la responsabilità dei dipendenti. Creiamo un sistema di cooperazione di partenariato "multi-win con professionalità meticolosa e concetti di cooperazione vera e onesta, in modo da aiutare i clienti a ottenere il massimo valore.

VS1 (Zn63) -24 Interruttore di aspirazione VCB per interni

Serie VS1-24 di interruttore di aspirapolvere ad alta tensione interno con cilindro isolato comune è a tre frasi a.C. 50 Hz Apparecchiature di distribuzione di energia interna con la tensione nominale di 24kV. È utilizzato per proteggere il controllo delle apparecchiature elettriche nei campi dell'industria e delle imprese minerarie, delle centrali elettriche e della sottostazione. A questo tipo di interruzione del vuoto è conforme agli standard nazionali e alla stipulazione dello standard IEC, la capacità raggiunge il grado di M2-E2-C2.

Il prodotto adotta il modo di isolamento composito, il funzionamento a molla e il meccanismo di spinta dell'asta, con le caratteristiche del piccolo volume, la progettazione compatta e il funzionamento affidabile. Può facilmente corrispondere al quadro e soddisfare le richieste di "cinque prevenzioni".

Questo tipo di interruttore a vuoto può essere utilizzato per molti tipi di quadri come KYN28-24 (GZS1). Questa serie di prodotti include: camion di isolamento per camion VCB e camion dei fusibili, ecc.

Il prodotto adotta il modo di isolamento composito, il funzionamento a molla e il meccanismo di spinta dell'asta, con le caratteristiche del piccolo volume, compatto

Breve descrizione:

VS1-24 Interruttore a vuoto HV interno HV è un'attrezzatura da interruttore interno da 24 KV in 3 fasi da 50Hz da 50Hz

♦ Installazione modo: tipo di prelievo, tipo fisso, tipo montato laterale;

♦ Meccanismo operativo: meccanismo operativo a molla e meccanismo operativo magnetico permanente;

♦ Tipo di polo: polo assemblato, polo incorporato;

♦ APPLICAZIONE: SW.TCHGEAR KYN28-24, XGN-24.

♦ Tappo secondario: 58pins, 64pins.

Standard di prodotto

♦ IEC62271-100 Switchgear e ControlGear Part 100: interruttori CA: interruttori CA

♦ GB1984 Acruit-rompighiaccio ad alta tensione

♦ GB/T11022 Specifiche comuni per i quadri ad alta tensione e gli standard di controllo

♦ JB/T 3855 ALTA TENSIONE CACCUITO ACCUSSI

♦ DL/T402 Specifiche di interruttori CA ad alta tensione






Informazioni di base.


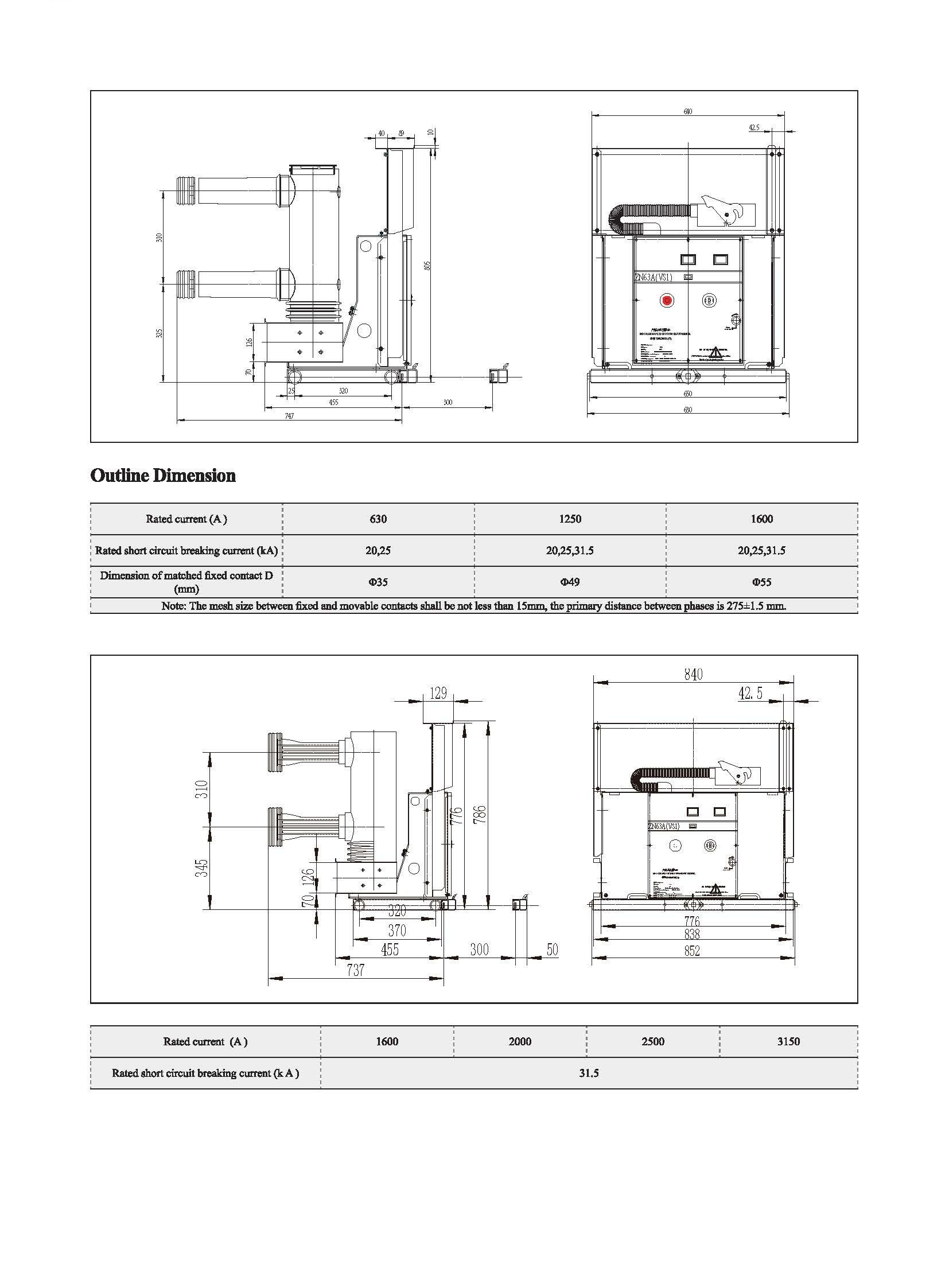
Parametri tecnici



Disegni tecnici


Applicare le condizioni ambientali:

1. Temperatura ambiente: -10 ℃ -+40 ℃

2. Umidità ambientale: l'umidità media di una giornata non dovrebbe essere più di 95 %; L'umidità media di un mese non dovrebbe essere più di 90 %;

3. Intensità del terremoto: non superiore a 8 gradi

4. Pressione del vapore saturo: la pressione media di un giorno non dovrebbe essere superiore a 2. 2KPA , La pressione media di un mese non dovrebbe essere superiore a 1,8kPa;

5. L'altezza sul livello del mare: meno di 1000 m; (esclusi i requisiti speciali)

6.1T dovrebbe essere installato nei luoghi senza incendio, esplosione, sporcizia grave, corrosione chimica e razione VS1 violenta.




FAQ

D: Potrei avere prezzi dei tuoi prodotti?

A: Benvenuto. Non esitate a inviarci una richiesta qui. Ti risponderemo entro 24 ore.


D: Posso ottenere un campione prima dell'ordine di massa?

A: Sì, diamo il benvenuto all'ordine di esempio per testare e verificare la qualità. I ​​campioni messi sono accettabili.


D: Possiamo stampare il nostro logo/ nome dell'azienda sui prodotti?

A: Sì, certo, accettiamo OEM, quindi abbiamo bisogno che tu ci fornisca l'autorizzazione del marchio


D: accetti la personalizzazione del prodotto?

A: Sì, ovviamente, fornisci disegni o parametri specifici, ti citeremo dopo la valutazione


D: Qual è il tempo di consegna?

A: Il tempo di consegna dipende dalle quantità ordinate, generalmente entro 7-20 giorni dalla ricezione del pagamento.


D: Quali sono i tuoi termini commerciali?

A: Accettiamo EXW, FOB, CIF, FCA, ecc.


D: Qual è il tuo metodo di pagamento?  

A: Accettiamo T/T, Western Union, PayPal, irrevocabile L/C a vista, ecc.


D: Ispezioni i prodotti finiti?

A: Sì, ogni fase di produzione e prodotti finiti verrà uscito dall'ispezione dal dipartimento QC prima della spedizione. E forniremo rapporti di ispezione delle merci per il tuo riferimento prima della spedizione


D: Come risolvere i problemi di qualità dopo le vendite?

A: Scatta foto dei problemi di qualità e inviaci per il nostro controllo e conferma, faremo una soluzione soddisfatta per te entro 3 giorni.




Fabbrica


Certificato




Tag caldi: VS1 (Zn63) -24 Interruttore a vuoto VCB per verniciatura verniciato
Invia richiesta
Informazioni di contatto
Per domande su quadri di bassa tensione, isolatori ad alta tensione, sezionatore di terra ad alta tensione o listino prezzi, lasciaci la tua email e ti contatteremo entro 24 ore.
X
Utilizziamo i cookie per offrirti una migliore esperienza di navigazione, analizzare il traffico del sito e personalizzare i contenuti. Utilizzando questo sito, accetti il ​​nostro utilizzo dei cookie. politica sulla riservatezza
Rifiutare Accettare